Layout & Location


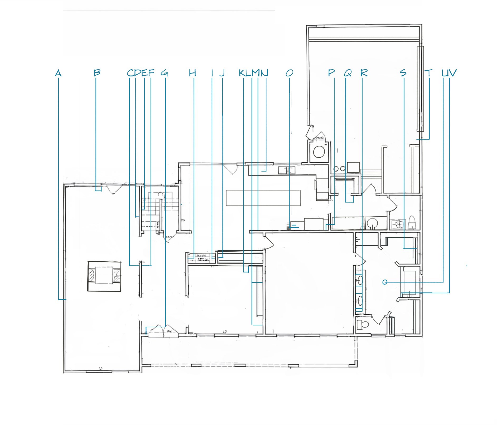
Electrical Notations

A. Google Fiber Internet Installed here

B. (SMART) The pergola’s string lights and fan are hardwired and both installed in the Kasa App.

C. (SMART) Living Room lights are separated, down lights and mantel light, and both installed in the Kasa App.

D. Samsung Frame TV electronics and hardware are pre-installed, and HDMI hook-ups are built into the wall.

E. Samsung Frame TV and TV electronics are in the under-stair closet on the opposite side of this wall.

F. (SMART) The entryway lights are installed in the Kasa App.

G. (SMART) The outside front porch lights and column lights are both installed in the Kasa App.

H. (SMART) Bar’s under-cabinet lighting is installed in the Kasa App.

I.(SMART) Bar’s shelf lighting is installed in the Kasa App.

J. The built-ins in the office have electrical outlets for electronics, printers, etc.

K. The office has a hidden flush-mounted dimmer switch here.

L. The built-ins in the office, and the office closet, have electrical outlets for electronics, printers, etc.

M. (SMART) The kitchen lights are all installed in the Kasa App.

N. A dedicated charger drawer is here, with 4 outlets, 2 Lightning Charge Cords, 2 USB-C Cords, and 1 USB-A Cord.

O. This built-in cabinet has electrical outlets to keep the microwave, toaster oven, etc. hidden.

P. Outlet at height for Dyson charging is here.

Q. Pantry lights are on a timer for auto-shut off in 1-4 hours, (selectable).

R. Outlets are under both vanities, and inside the built-in vanity cabinets to plug in hair dryers, curling irons, etc., out of sight.

S. Hers closet has custom lighting installed throughout.

T. (SMART) The lights on either side of the garage door are connected to the Kasa App.

U. (SMART) The heater in the master bath is connected to the Kasa App, and currently programmed to start heating 30 minutes before we wake up.

V. The tub’s lights are separate, for dimmer lighting while soaking.


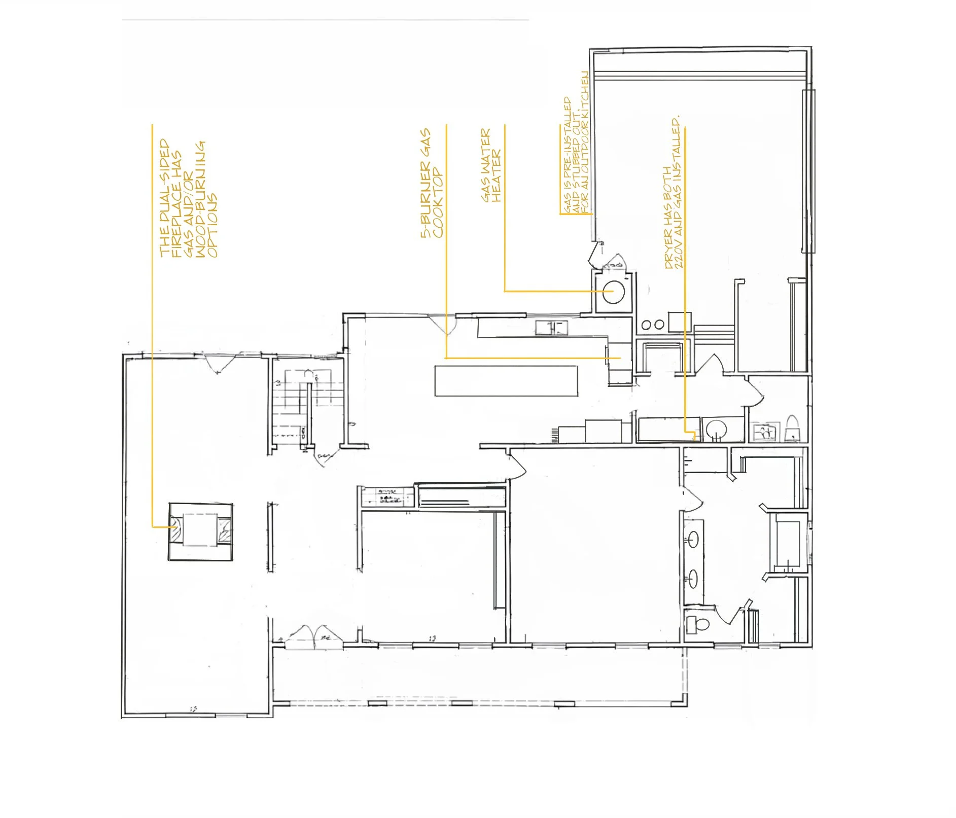
Natural Gas Notations


Advanced Service

The Brightline Project →

Included

Initial Consultation

Brainstorming Session

Collaborative Planning

Customized Deliverables

Multiple Feedback Rounds

Actionable Recommendations

Post-Project Support


“Their attention to detail and commitment to quality truly stood out. We’ve already recommended them to others.”

– Former Customer